| Каркасный дом (150 мм) | 6х8 | Толщина утепления 150 мм | 2404100 | Заказать |
| Каркасный дом (200 мм) | 6х8 | Толщина утепления 200 мм | 2646100 | Заказать |
Доставка включена в стоимость дома!
Пользуйтесь нашим планировщиком, чтобы получить индивидуальную планировку.
С помощью планировщика можно создать наиболее подходящие схемы, эскизы, планы, чертежи предполагаемой бани с мансардой, эркером, с требуемым количеством комнат. В конечном итоге вы получите идеальный проект, 100% отвечающий вашим потребностям.
Вы имеете возможность подобрать тип крыши: четырехскатная, двускатная и вальмовая. Двухскатная крыша - наиболее популярна в малометражных постройках.
Популярные на сегодняшний день размеры: мини - до 36 квадратных метров (чаще всего, одноэтажные бани); компактные - от 36 до 70 квадратных метров (обычно двухэтажные); большие - от 70 кв. М и больше.
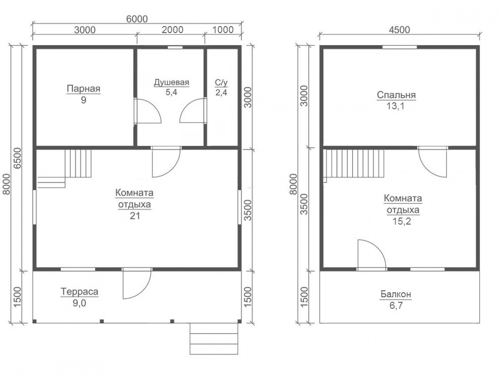
| Площадь застройки: | 48 м2 | |
| Длина: | 6 м | |
| Ширина: | 8 м | |
| Общая площадь: | 75 м2 | |
| Исполнение | Под ключ (с отделкой) | |
| Фундамент | Свайно-винтовой или ж/б сваи (рассчитываются отдельно). | |
| Гидроизоляция фундамента | Рубероид в два слоя. | |
| Основание (обвязка) | Из обрезного бруса 150х150 мм. 150х200 мм. согласно выбранной толщине утепления. Торцевая строганая доска камерной сушки 45х145/45х195+/-5 мм. Обработка антисептиком. | |
| Цокольное перекрытие | Строганая доска камерной сушки 45х145/45х195+/-5 мм. с шагом 590 мм. Обработка антисептиком. | |
| Пол черновой | Обрезная доска камерной сушки 20х100 мм. | |
| Влаго-ветрозащита чернового пола | Мембрана Ондутис А100. | |
| Внешние стены | Стойки каркаса из строганой доски камерной сушки 45х145/45х195+/-5 мм. с шагом 590 мм. Верхняя двойная и нижняя обвязки из строганой доски камерной сушки 45х145/45х195+/-5 мм. Разгрузочный ригель из строганой доски 45х145+/-5 мм. Укосины из строганой доски 20х95 мм. | |
| Перегородки | Стойки каркаса из строганой доски камерной сушки 45х95+/-5 мм. с шагом 590 мм. Верхняя двойная и нижняя обвязки из строганой доски 45х95+/-5 мм. Разгрузочный ригель из строганой доски камерной сушки 45х145+/-5 мм. Укосины из строганой доски камерной сушки 20х95 мм. | |
| Сборка каркаса | На гвозди. | |
| Высота от пола до потолка |
Баня одноэтажная: 2,5 м.
Баня с мансардой: 1-ый этаж- 2,5 м. 2-ой этаж (мансарда)- 2,3 м. Баня в полтора и два этажа: 1-ый этаж 2,5 м. 2-ой этаж 2,4 м. в полутораэтажной бане. 2,5 м. в двухэтажной бане. |
|
| Внешняя отделка стен | Имитация бруса камерной сушки, сорт АВ, толщиной 17 мм. Монтаж через строганый брусок камерной сушки 45х45+/-5 мм. (вентилируемый фасад). Влаго-ветрозащитная мембрана- Ондутис А100. | |
| Внутренняя отделка стен, перегородок | Евровагонка камерной сушки, сорт АВ, толщиной 12,5 мм. по строганой рейке 20х40+/-5 мм. либо ГКЛ 12,5 мм. | |
| Отделка потолка | Евровагонка камерной сушки, сорт АВ, толщиной 12,5 мм. по строганой рейке 20х40+/-5 мм. либо ГКЛ 12,5 мм. | |
| Пол чистовой | Шпунтованная доска камерной сушки толщиной 35-36 мм. сорт АВ. по строганой рейке 20х40+/-5 мм. либо шпунтованная ДСП 16 мм. по разряженной обрешётке из строганой доски камерной сушки 20х95+/-5 мм. | |
| Утепление (пол, потолок) | Минеральная вата Knauf 150/200 мм. согласно выбранной толщине утепления. | |
| Утепление стен | Плитный утеплитель Rockwool, толщиной 150/200 мм. согласно выбранной толщине утепления. | |
| Звукоизоляция перегородок | Плитный утеплитель Rockwool, толщиной 100 мм. | |
| Пароизоляция (стены, перегородки, пол, потолок) | Плёнка Ондутис R70. Дополнительная герметизация нахлёстов/примыканий пароизоляционной плёнки клейкой лентой Delta. | |
| Отделка парной | Отделка осиновой вагонкой камерной сушки, сорт АВ по фольге, через строганую рейку 20х40+/-5 мм. (вентиляционный зазор). Установка пологов из осины. | |
| Окна | Двухкамерные стеклопакеты ПВХ белого цвета, профиль 60 мм. В комплекте: отливы, подоконники, москитные сетки. | |
| Двери | Входная- металлическая, утеплённая (Россия). Межкомнатные- филёнчатые. В душевую/парную- клиновые (банные). | |
| Наличники на окна и двери | Наличник деревянный, строганый, камерной сушки 70-90 мм. с двух сторон. | |
| Лестница (при наличии второго этажа) | Деревянная, одно или двухмаршевая. Перила- заводские резные, балясины- заводские точеные, устанавливаются стартовые точёные столбы. Ступени 40х200 мм. Тетива лестницы- 90х140 мм. | |
| Крыша | Двускатная, ломаная или вальмовая в соответствии с проектом. | |
| Стропильная система | Выполнена из строганой доски камерной сушки 45х145/45х195+/-5 мм. Шаг установки стропил 590 мм. | |
| Обрешётка | Выполняется из строганой доски камерной сушки толщиной 20х95+/-5 мм. Шаг крепления обрешетки 350 мм. Контробрешётка выполняется из строганого бруска камерной сушки 45х45+/-5 мм. Крепится по стропилам (вентиляционный зазор). | |
| Подкровельная мембрана | Ондутис А100 | |
| Кровельное покрытие (на выбор) | Металлочерепица 0,45 мм. Цвет на выбор. | |
| Фронтоны (при наличии) | Каркас из строганой доски камерной сушки 45х145/45х195+/-5 мм. Обшиваются имитацией бруса камерной сушки, сорт АВ, толщиной 17 мм. Монтаж через строганый брусок камерной сушки 45х45+/-5 мм. (вентилируемый фасад). Влаго-ветрозащитная мембрана- Ондутис А100. Монтаж вентиляционных решёток. | |
| Свесы крыши | Ширина 400 мм. Подшиваются вагонкой камерной сушки, сорт АВ. | |
| Терраса/балкон (при наличии) | Устанавливаются опорные столбы из строганного бруса камерной сушки 140х140 мм. | |
| Отделка потолка террасы/балкона | Евровагонка камерной сушки толщиной 12,5 мм. сорт АВ. | |
| Пол террасы/балкона | Шпунтованная доска камерной сушки толщиной 35-36 мм. сорт АВ. | |
| Ограждение террасы/балкона | Перила- строганая доска. Балясины- точеные, фигурные. Либо ограждение в скандинавском стиле. Устанавливаются ступени у входа. | |
| Допуск на геометрические параметры | Составляет +/- 50 мм по длине с каждой стороны. | |
| Допускается стыковка имитации бруса, вагонки и половой доски | По всему периметру стен бани (если ширина и длина бани более 6,0 метров). Вагонки и доски пола в каждой отдельной комнате. | |
| Допуски по имитации бруса, вагонке, доске | +/- 5 мм. | |
| В стоимость включена | Доставка комплекта материала в радиусе 500 км. от г. Пестова Новгородской области и сборка дома на вашем участке. | |
| Гарантия | 5 лет. | |
| Печь | По запросу. | |
| Бытовка строительная 2,0х3,0 м. каркасно-щитовая. | Стоимость 23000 руб. Остаётся на участке Заказчика. | |
| Туалет 1,0х1,0 м. каркасно-щитовой. | Стоимость 12000 руб. Остаётся на участке Заказчика. | |
| Генератор | Стоимость аренды на весь срок строительства 15000 руб. ГСМ за счёт Заказчика. | |
Строительство бани осуществляется в нескольких видах: под усадку, когда дом отстаивается некоторое время и под ключ.
В период холодов стоит строить баню в холодную погоду, чтобы каркас не промок, в теплое время года - не под дождем.
Подходящими для дачи или сада считают экономичные бани на винтовых сваях, на нашем сайте присутствуют одноэтажные и полуторатажные бани.
Имеется два размера утепления: 200 мм и 150 мм. Каркасные бани с толщиной стен сто пятьдесят миллиметров получаются дешевле, но не настолько энергоэффективными.