Дома под ключ в Сочи
Отзывы из Яндекс Карт
4.9
79 отзывов
Дополнительные услуги 88%
2 154 оценок
Комплектации 89%
1 535 оценок
Планировки 90%
2 484 оценок
Проекты 93%
2 231 оценок
С
Любовь13.05.2026 г.
Зимой в доме было прохладно в сильные морозы. Позвонили в компанию, прислали инженера. Оказалось, мы сами виноваты — не регулировали правильно вентиляцию. Объяснили, научили, теперь тепло.
С
Агап Ф.17.04.2026 г.
В целом доволен, построили баню 5,5х6,5 с беседкой и навесом для дров. Сделали всё под ключ: полы с подогревом в комнате отдыха, электрику, даже полки в парной вырезали. Цена вышла выше среднего, но не жалею. Только вот просили сделать слив с уклоном, а сделали почти прямой — вода застаивается, сам переделывал трубы.
С
Викентий С.22.02.2026 г.
Заказал у них домик 5х6 с террасой и крыльцом, самый простой, летний. Приехала бригада, за два дня поставили коробку, на третий — крыша и окна. Только дверь входную поставили кривовато, щель оставалась — строители в тот же день подправили.
С
Олег13.05.2025 г.
Огромный плюс компании в том что у них собственное производство бруса и каркасных панелей — это позволяет контролировать качество с самого начала и избежать проблем с поставками.
Отзывы из Google Карт
4.8
48 отзывов
Дополнительные услуги 88%
2 154 оценок
Комплектации 89%
1 535 оценок
Планировки 90%
2 484 оценок
Проекты 93%
2 231 оценок
С
Анатолий Н.14.03.2026 г.
Заказал времянку 4х6 каркасную для рабочих. Собрали за пять дней, дешево. Но полы покрасили вонючей краской, два дня проветривал. Мелочь, а неприятно.
С
Лука Беляков15.07.2025 г.
Спасибо за ваш профессионализм и ответственность — дом построен на совесть, и я точно знаю, что он простоит долгие годы, даря радость мне и моей семье.
Отзывы из 2гис
4.9
32 отзывов
Дополнительные услуги 88%
2 154 оценок
Комплектации 89%
1 535 оценок
Планировки 90%
2 484 оценок
Проекты 93%
2 231 оценок
С
Архип Ларионов29.01.2026 г.
Обычная ситуация: заказал каркасную баню 4х4 с беседкой, строили 3 дня с перекурами и чаепитиями. В беседке пол положили не по уровню — вода лужами стоит после дождя. Сказал прорабу, он обещал переделать, но я уже сам выровнял.
С
Лира Гусева13.03.2025 г.
Баня из бруса от компании Брус дома — это не просто постройка, это настоящее произведение искусства, где каждая деталь подобрана с вкусом и пониманием русских традиций.


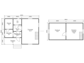
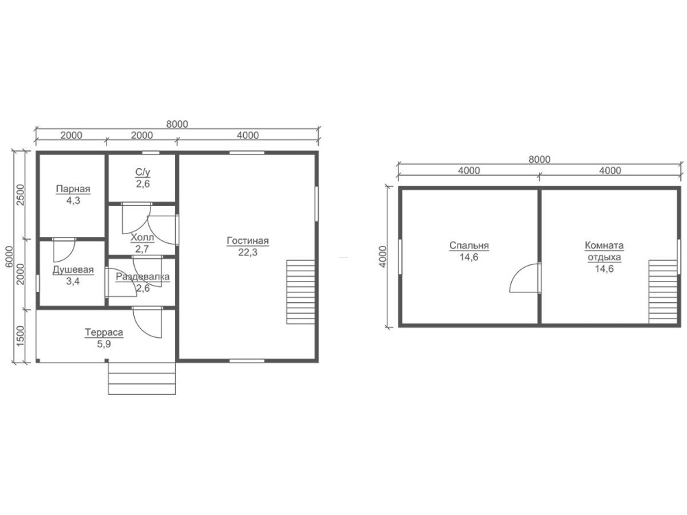
Проект №1 Каркасная баня 6х8

каркас из строганой доски
Создайте свой план для этого проекта
и отправьте его нам на расчет в один клик.
Каркасный дом (150 мм) 6х8 Толщина утепления 150 мм 2394100 Заказать
Каркасный дом (200 мм) 6х8 Толщина утепления 200 мм 2676100 Заказать

Доставка включена в стоимость дома!

Пользуйтесь нашим планировщиком, чтобы получить индивидуальную планировку.

С помощью планировщика можно создать наиболее подходящие схемы, эскизы, планы, чертежи предполагаемой бани с мансардой, эркером, с требуемым количеством комнат. В конечном итоге вы получите идеальный проект, 100% отвечающий вашим потребностям.

Вы имеете возможность подобрать тип крыши: четырехскатная, двускатная и вальмовая. Двухскатная крыша - наиболее популярна в малометражных постройках.

Популярные на сегодняшний день размеры: мини - до 36 квадратных метров (чаще всего, одноэтажные бани); компактные - от 36 до 70 квадратных метров (обычно двухэтажные); большие - от 70 кв. М и больше.


Наши работы

Перейти в галерею


Комплектация

Площадь застройки: 48 м2
Длина: 6 м
Ширина: 8 м
Общая площадь: 73 м2
Исполнение Под ключ (с отделкой)
Фундамент Свайно-винтовой или ж/б сваи (рассчитываются отдельно).
Гидроизоляция фундамента Рубероид в два слоя.
Основание (обвязка) Из обрезного бруса 150х150 мм. 150х200 мм. согласно выбранной толщине утепления. Торцевая строганая доска камерной сушки 45х145/45х195+/-5 мм. Обработка антисептиком.
Цокольное перекрытие Строганая доска камерной сушки 45х145/45х195+/-5 мм. с шагом 590 мм. Обработка антисептиком.
Пол черновой Обрезная доска камерной сушки 20х100 мм.
Влаго-ветрозащита чернового пола Мембрана Ондутис А100.
Внешние стены Стойки каркаса из строганой доски камерной сушки 45х145/45х195+/-5 мм. с шагом 590 мм. Верхняя двойная и нижняя обвязки из строганой доски камерной сушки 45х145/45х195+/-5 мм. Разгрузочный ригель из строганой доски 45х145+/-5 мм. Укосины из строганой доски 20х95 мм.
Перегородки Стойки каркаса из строганой доски камерной сушки 45х95+/-5 мм. с шагом 590 мм. Верхняя двойная и нижняя обвязки из строганой доски 45х95+/-5 мм. Разгрузочный ригель из строганой доски камерной сушки 45х145+/-5 мм. Укосины из строганой доски камерной сушки 20х95 мм.
Сборка каркаса На гвозди.
Высота от пола до потолка Баня одноэтажная: 2,5 м. Баня с мансардой: 1-ый этаж- 2,5 м.
2-ой этаж (мансарда)- 2,3 м.
Баня в полтора и два этажа:
1-ый этаж 2,5 м.
2-ой этаж 2,4 м. в полутораэтажной бане.
2,5 м. в двухэтажной бане.
Внешняя отделка стен Имитация бруса камерной сушки, сорт АВ, толщиной 17 мм. Монтаж через строганый брусок камерной сушки 45х45+/-5 мм. (вентилируемый фасад). Влаго-ветрозащитная мембрана- Ондутис А100.
Внутренняя отделка стен, перегородок Евровагонка камерной сушки, сорт АВ, толщиной 12,5 мм. по строганой рейке 20х40+/-5 мм. либо ГКЛ 12,5 мм.
Отделка потолка Евровагонка камерной сушки, сорт АВ, толщиной 12,5 мм. по строганой рейке 20х40+/-5 мм. либо ГКЛ 12,5 мм.
Пол чистовой Шпунтованная доска камерной сушки толщиной 35-36 мм. сорт АВ. по строганой рейке 20х40+/-5 мм. либо шпунтованная ДСП 16 мм. по разряженной обрешётке из строганой доски камерной сушки 20х95+/-5 мм.
Утепление (пол, потолок) Минеральная вата Knauf 150/200 мм. согласно выбранной толщине утепления.
Утепление стен Плитный утеплитель Rockwool, толщиной 150/200 мм. согласно выбранной толщине утепления.
Звукоизоляция перегородок Плитный утеплитель Rockwool, толщиной 100 мм.
Пароизоляция (стены, перегородки, пол, потолок) Плёнка Ондутис R70. Дополнительная герметизация нахлёстов/примыканий пароизоляционной плёнки клейкой лентой Delta.
Отделка парной Отделка осиновой вагонкой камерной сушки, сорт АВ по фольге, через строганую рейку 20х40+/-5 мм. (вентиляционный зазор). Установка пологов из осины.
Окна Двухкамерные стеклопакеты ПВХ белого цвета, профиль 60 мм. В комплекте: отливы, подоконники, москитные сетки.
Двери Входная- металлическая, утеплённая (Россия). Межкомнатные- филёнчатые. В душевую/парную- клиновые (банные).
Наличники на окна и двери Наличник деревянный, строганый, камерной сушки 70-90 мм. с двух сторон.
Лестница (при наличии второго этажа) Деревянная, одно или двухмаршевая. Перила- заводские резные, балясины- заводские точеные, устанавливаются стартовые точёные столбы. Ступени 40х200 мм. Тетива лестницы- 90х140 мм.
Крыша Двускатная, ломаная или вальмовая в соответствии с проектом.
Стропильная система Выполнена из строганой доски камерной сушки 45х145/45х195+/-5 мм. Шаг установки стропил 590 мм.
Обрешётка Выполняется из строганой доски камерной сушки толщиной 20х95+/-5 мм. Шаг крепления обрешетки 350 мм. Контробрешётка выполняется из строганого бруска камерной сушки 45х45+/-5 мм. Крепится по стропилам (вентиляционный зазор).
Подкровельная мембрана Ондутис А100
Кровельное покрытие (на выбор) Металлочерепица 0,45 мм. Цвет на выбор.
Фронтоны (при наличии) Каркас из строганой доски камерной сушки 45х145/45х195+/-5 мм. Обшиваются имитацией бруса камерной сушки, сорт АВ, толщиной 17 мм. Монтаж через строганый брусок камерной сушки 45х45+/-5 мм. (вентилируемый фасад). Влаго-ветрозащитная мембрана- Ондутис А100. Монтаж вентиляционных решёток.
Свесы крыши Ширина 400 мм. Подшиваются вагонкой камерной сушки, сорт АВ.
Терраса/балкон (при наличии) Устанавливаются опорные столбы из строганного бруса камерной сушки 140х140 мм.
Отделка потолка террасы/балкона Евровагонка камерной сушки толщиной 12,5 мм. сорт АВ.
Пол террасы/балкона Шпунтованная доска камерной сушки толщиной 35-36 мм. сорт АВ.
Ограждение террасы/балкона Перила- строганая доска. Балясины- точеные, фигурные. Либо ограждение в скандинавском стиле. Устанавливаются ступени у входа.
Допуск на геометрические параметры Составляет +/- 50 мм по длине с каждой стороны.
Допускается стыковка имитации бруса, вагонки и половой доски По всему периметру стен бани (если ширина и длина бани более 6,0 метров). Вагонки и доски пола в каждой отдельной комнате.
Допуски по имитации бруса, вагонке, доске +/- 5 мм.
В стоимость включена Доставка комплекта материала в радиусе 500 км. от г. Пестова Новгородской области и сборка дома на вашем участке.
Гарантия 5 лет.
Печь По запросу.
Бытовка строительная 2,0х3,0 м. каркасно-щитовая. Стоимость 23000 руб. Остаётся на участке Заказчика.
Туалет 1,0х1,0 м. каркасно-щитовой. Стоимость 12000 руб. Остаётся на участке Заказчика.
Генератор Стоимость аренды на весь срок строительства 15000 руб. ГСМ за счёт Заказчика.

Строительство бани осуществляется в нескольких видах: под усадку, когда дом отстаивается некоторое время и под ключ.

В период холодов стоит строить баню в холодную погоду, чтобы каркас не промок, в теплое время года - не под дождем.

Подходящими для дачи или сада считают экономичные бани на винтовых сваях, на нашем сайте присутствуют одноэтажные и полуторатажные бани.

Имеется два размера утепления: 200 мм и 150 мм. Каркасные бани с толщиной стен сто пятьдесят миллиметров получаются дешевле, но не настолько энергоэффективными.

Дополнительные услуги



Популярные проекты


Каркасные дома 6х5 Бани из бруса с террасой Маленькие бани из бруса
Дома из бруса

Заказать или задать вопрос



Заказать или задать вопрос

Заказать звонок