Дома под ключ в Сочи
Отзывы из Яндекс Карт
4.9
101 отзывов
Дополнительные услуги 88%
2 154 оценок
Комплектации 89%
1 535 оценок
Планировки 90%
2 484 оценок
Проекты 93%
2 231 оценок
С
Майя С.18.04.2026 г.
Мне нравится, что можно посмотреть готовые объекты. Мы ездили смотреть дом в похожей конфигурации в соседний поселок, пообщались с хозяевами. Это придало уверенности, и мы заключили договор.
С
Захар23.02.2026 г.
Вот как получилось в итоге, строили прошлым летом, до сих пор радуемся с семьей каждый раз, когда приезжаем.
С
Захар Кошелев19.08.2025 г.
Я рекомендую компанию Брус дома всем, кто хочет построить качественный и красивый деревянный дом без лишних хлопот, ведь здесь вам предложат полный цикл услуг и воплотят в жизнь любой проект с максимальной ответственностью.
Отзывы из Google Карт
4.8
61 отзывов
Дополнительные услуги 88%
2 154 оценок
Комплектации 89%
1 535 оценок
Планировки 90%
2 484 оценок
Проекты 93%
2 231 оценок
С
Женя Алёхин12.03.2026 г.
Если б знал, что усадка полгода, взял бы каркасник. Но брус 6х8 с балконом выглядит солидно, соседи завидуют. Только окна пластиковые повело немного.
С
Янина О.03.01.2026 г.
Дом 9х9 с верандой и мансардой. Живём уже второй год, никаких трещин. Правда, в первую зиму промерзали углы в спальне — вызвала бригаду, проконопатили заново бесплатно.
С
Всеволод Никитин02.02.2025 г.
Прошло два года с момента постройки дома — пишу этот отзыв чтобы выразить благодарность за безупречное качество. Дерево не потемнело, не появилось щелей, конструкция остается такой же прочной и надежной. Это лучшая рекомендация для любой строительной компании.
Отзывы из 2гис
4.9
32 отзывов
Дополнительные услуги 88%
2 154 оценок
Комплектации 89%
1 535 оценок
Планировки 90%
2 484 оценок
Проекты 93%
2 231 оценок
С
Максим Астахов01.04.2025 г.
Приятно удивлён тем, насколько тщательно компания подходит к подбору пиломатериалов, ведь мой дом собран из ровного и сухого бруса без единого намёка на синеву или другие дефекты, что гарантирует долговечность постройки.


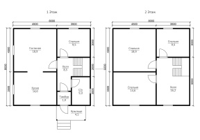
Проект №106 Каркасный дом для большой семьи 8х8

каркас из строганой доски
Создайте свой план для этого проекта
и отправьте его нам на расчет в один клик.
Каркасный дом (150 мм) 8х8 Толщина утепления 150 мм 3618100 Заказать
Каркасный дом (200 мм) 8х8 Толщина утепления 200 мм 3938100 Заказать

Доставка включена в стоимость дома!

Для того, чтобы получить свою персональную планировку, воспользуйтесь планировщиком.

С помощью планировщика можно сделать подходящие чертежи, планы, схемы, эскизы вашего будущего дома с эркером, мансардой, с одной, двумя или тремя спальнями. В конечном итоге получится личный проект, 100% отвечающий вашим условиям.

При заказе постройки дома можно выбрать определенный тип кровли: двускатная, четырехскатная и вальмовая. Двухскатную считают особенно популярной в не очень больших постройках.

Популярные размеры: мини - до 50 квадратных метров (чаще всего, 1-этажные); компактные - от 70 до 100м2 (обычно 2х этажные); большие - от 150 квадратов и больше.

Строим дуплексы - каркасные дома с 2-мя входами на две семьи. Эти дома строятся для нескольких хозяев и разделяются на две половины, для обоих половин - отдельный вход.


Наши работы

Перейти в галерею


Комплектация

Площадь застройки: 68 м2
Длина: 8 м
Ширина: 8 м
Общая площадь: 125 м2
Исполнение Под ключ (с отделкой)
Фундамент Свайно-винтовой или ж/б сваи (рассчитываются отдельно).
Гидроизоляция фундамента Рубероид в два слоя.
Основание (обвязка) Из обрезного бруса 150х150 мм. 150х200 мм. согласно выбранной толщине утепления. Торцевая доска строганая 45х145/45х195+/-5 мм. согласно выбранной толщине утепления. Обработка антисептиком.
Цокольное перекрытие Строганая доска камерной сушки 45х145/45х195+/-5 мм. с шагом 590 мм. Обработка антисептиком.
Пол черновой Обрезная доска камерной сушки 20х100 мм.
Влаго-ветрозащита чернового пола Мембрана Ондутис А100.
Внешние стены Стойки каркаса из строганой доски камерной сушки 45х145/45х195+/-5 мм. с шагом 590 мм. Верхняя двойная и нижняя обвязки из строганой доски камерной сушки 45х145/45х195+/-5 мм. Разгрузочный ригель из строганой доски 45х145+/-5 мм. Укосины из строганой доски 20х95 мм.
Перегородки Стойки каркаса из строганой доски камерной сушки 45х95+/-5 мм. с шагом 590 мм. Верхняя двойная и нижняя обвязки из строганой доски 45х95+/-5 мм. Разгрузочный ригель из строганой доски камерной сушки 45х145+/-5 мм. Укосины из строганой доски камерной сушки 20х95 мм.
Сборка каркаса На гвозди.
Высота от пола до потолка Дом одноэтажный: 2,5 м. Дом с мансардой: 1-ый этаж- 2,5 м.
2-ой этаж (мансарда)- 2,3 м.
Дом в полтора и два этажа:
1-ый этаж 2,5 м.
2-ой этаж 2,4 м. в полутораэтажном доме
2,5 м. в двухэтажном доме.
Внешняя отделка стен Имитация бруса камерной сушки, сорт АВ, толщиной 17 мм. Монтаж через строганый брусок камерной сушки 45х45+/-5 мм. (вентилируемый фасад). Влаго-ветрозащитная мембрана- Ондутис А100.
Внутренняя отделка стен, перегородок Евровагонка камерной сушки, сорт АВ, толщиной 12,5 мм. по строганой рейке 20х40+/-5 мм. либо ГКЛ 12,5 мм.
Отделка потолка Евровагонка камерной сушки, сорт АВ толщиной, 12,5 мм. по строганой рейке 20х40+/-5 мм. либо ГКЛ 12,5 мм.
Пол чистовой Шпунтованная доска камерной сушки толщиной 35-36 мм. сорт АВ. по строганой рейке 20х40+/-5 мм. либо шпунтованная ДСП 16 мм. по разряженной обрешётке из строганой доски камерной сушки 20х95+/-5 мм.
Утепление (пол, потолок) Минеральная вата Knauf 150/200 мм. согласно выбранной толщине утепления.
Утепление стен Плитный утеплитель Rockwool, толщиной 150/200 мм. согласно выбранной толщине утепления.
Звукоизоляция перегородок Плитный утеплитель Rockwool, толщиной 100 мм.
Пароизоляция (стены, перегородки, пол, потолок) Плёнка Ондутис R70. Дополнительная герметизация нахлёстов/примыканий пароизоляционной плёнки клейкой лентой Delta.
Окна Двухкамерные стеклопакеты ПВХ белого цвета, профиль 60 мм. В комплекте: отливы, подоконники, москитные сетки.
Двери Входная- металлическая, утеплённая (Россия). Межкомнатные- филёнчатые.
Наличники на окна и двери Наличник деревянный, строганый, камерной сушки 70-90 мм. с двух сторон.
Лестница (при наличии второго этажа) Деревянная, одно или двухмаршевая. Перила- заводские резные, балясины- заводские точеные, устанавливаются стартовые точёные столбы. Ступени 40х200 мм. Тетива лестницы- 90х140 мм.
Крыша Двускатная, ломаная или вальмовая в соответствии с проектом.
Стропильная система Выполнена из строганой доски камерной сушки 45х145/45х195+/-5 мм. Шаг установки стропил 590 мм.
Обрешётка Выполняется из строганой доски камерной сушки толщиной 20х95+/-5 мм. Шаг крепления обрешетки 350 мм. Контробрешётка выполняется из строганого бруска камерной сушки 45х45+/-5 мм. Крепится по стропилам (вентиляционный зазор).
Подкровельная мембрана Ондутис А100
Кровельное покрытие (на выбор) Металлочерепица 0,45 мм. Цвет на выбор.
Фронтоны (при наличии) Каркас из строганой доски камерной сушки 45х145/45х195+/-5 мм. Обшиваются имитацией бруса камерной сушки, сорт АВ, толщиной 17 мм. Монтаж через строганый брусок камерной сушки 45х45+/-5 мм. (вентилируемый фасад). Влаго-ветрозащитная мембрана- Ондутис А100. Монтаж вентиляционных решёток.
Свесы крыши Ширина 400 мм. Подшиваются вагонкой камерной сушки, сорт АВ.
Терраса/балкон (при наличии) Устанавливаются опорные столбы из строганного бруса камерной сушки 140х140 мм.
Отделка потолка террасы/балкона Евровагонка камерной сушки толщиной 12,5 мм. сорт АВ.
Пол террасы/балкона Шпунтованная доска камерной сушки толщиной 35-36 мм. сорт АВ.
Ограждение террасы/балкона Перила- строганая доска. Балясины- точеные, фигурные. Либо ограждение в скандинавском стиле. Устанавливаются ступени у входа.
Допуск на геометрические параметры Составляет +/- 50 мм по длине с каждой стороны.
Допускается стыковка имитации бруса, вагонки и половой доски По всему периметру стен дома (если ширина и длина дома более 6,0 метров). Вагонки и доски пола в каждой отдельной комнате.
Допуски по имитации бруса, вагонке, доске +/- 5 мм.
В стоимость включена Доставка комплекта материала в радиусе 500 км. от г. Пестова Новгородской области и сборка дома на вашем участке.
Гарантия 5 лет.
Бытовка строительная 2,0х3,0 м. каркасно-щитовая. Стоимость 23000 руб. Остаётся на участке Заказчика.
Туалет 1,0х1,0 м. каркасно-щитовой. Стоимость 12000 руб. Остаётся на участке Заказчика.
Генератор Стоимость аренды на весь срок строительства 15000 руб. ГСМ за счёт Заказчика.

Строительство дома осуществляется в двух вариантах: полностью под ключ и под усадку, когда дом отстаивается в течение некоторого времени.

В зимний период стоит строить в холодную погоду, чтобы каркас не успел промокнуть, в летний сезон - не под дождем.

Подходящими для сада или дачи являются малобюджетные дома на винтовых сваях, на нашем сайте находятся одноэтажные и полуторатажные варианты.

В том случае если дом будет строиться для проживания круглый год, рекомендуем очень теплые одноэтажные и двухэтажные дома на ленточном и плитном фундаменте.

Мы можем предложить два размера утепления: 200 мм и 150 мм. Каркасные дома с толщиной утеплителя сто пятьдесят миллиметров получаются дешевле, но не такими теплыми.

Дополнительные услуги


Каркасник , по эскизу 106 полутораэтажный с утепленной двускатной строительной конструкцией кровли, отличается экологической чистотой, в связи с применением OSB-плит, базальтовой и минеральной ваты, что предоставляет отменную морозостойкость, идеальный микроклимат в доме. Нормы постройки составляют 8х8 м., суммарная пригодная для жизни площадь - 125 кв.м.. Наша компания в кратчайшие сроки возведет дом из каркаса по индивидуальному или типовому чертежу в Сочи в удобное для вас время года и на любом варианте грунта.

Популярные проекты


Дома из бруса 9х10 Маленькие каркасные дома Маленькие бани из бруса
хит продаж
Тип: с террасой
Общая площадь: 2
2272300
от 2164100
хит продаж
Тип:
Общая площадь: 2
3578500
от 3408100
Дома из бруса

Заказать или задать вопрос



Заказать или задать вопрос

Заказать звонок